1215 Trotwood AveColumbia, TN 38401
Due to the health concerns created by Coronavirus we are offering personal 1-1 online video walkthough tours where possible.




Mortgage Calculator
Monthly Payment (Est.)
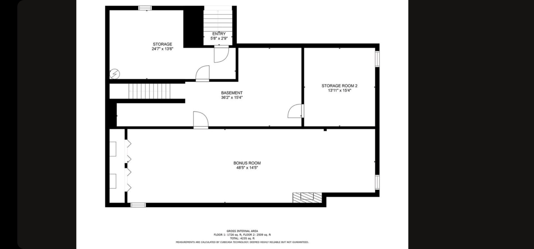
$2,737Beautifully renovated home close to the main hospital in Columbia, parks, private and public schools, and downtown Columbia. New roof, kitchen, Bathrooms, closets, paint, drywall, fixtures, and a finished basement with over 1200 sq ft for homeschooling, entertaining, or a 4th bedroom with his-and-her closets. Lots of storage space and closet space. Large living room with a fireplace and a large dining room for family gatherings. Relax in your new sunroom or the screened-in porch. Flat back yard with a brick patio for the BBQ. Beautiful trees. Lots of hardwood flooring and a large utility room that can also be used as a hobby room or a room for another refrigerator or deep freezer. A beautiful park is located around the corner, with nice picnic shelters, a large pond, a playground, disc golf, and tennis courts. All furniture is negotiable.
| a month ago | Listing first seen on site | |
| a month ago | Listing updated with changes from the MLS® |
Listings courtesy of Realtracs as distributed by MLS GRID
Based on information submitted to the MLS GRID as of 2026-03-16 05:22 AM UTC. All data is obtained from various sources and may not have been verified by broker or MLS GRID. Supplied Open House Information is subject to change without notice. All information should be independently reviewed and verified for accuracy. Properties may or may not be listed by the office/agent presenting the information.
The Digital Millennium Copyright Act of 1998, 17 U.S.C. § 512 (the “DMCA”) provides recourse for copyright owners who believe that material appearing on the Internet infringes their rights under U.S. copyright law. If you believe in good faith that any content or material made available in connection with our website or services infringes your copyright, you (or your agent) may send us a notice requesting that the content or material be removed, or access to it blocked. Notices must be sent in writing by email to [email protected].
The DMCA requires that your notice of alleged copyright infringement include the following information: (1) description of the copyrighted work that is the subject of claimed infringement; (2) description of the alleged infringing content and information sufficient to permit us to locate the content; (3) contact information for you, including your address, telephone number and email address; (4) a statement by you that you have a good faith belief that the content in the manner complained of is not authorized by the copyright owner, or its agent, or by the operation of any law; (5) a statement by you, signed under penalty of perjury, that the information in the notification is accurate and that you have the authority to enforce the copyrights that are claimed to be infringed; and (6) a physical or electronic signature of the copyright owner or a person authorized to act on the copyright owner’s behalf. Failure to include all of the above information may result in the delay of the processing of your complaint.